N
Комплект поставки Биодевайс 10 может изменяться в зависимости от отвода очищенной воды, типа грунта, условий применения и уточняется для каждого конкретного случая, согласуется с заказчиком и зависит от модели.
Обратите внимание! В базовую комплектацию не входит компрессор и насос для принудительного отведения воды. Данные элементы подбираются индивидуально.
Септик Биодевайс 10 поставляется полностью укомплектованным и готовым к эксплуатации. Ее конструкция состоит из полипропиленовых емкостей (может использоваться и стеклопластик), объединенных в едином корпусе. Расчеты очистного сооружения выполнены с учетом наилучших доступных технологий (НДТ) ИТС-10. Очистное сооружение не дает вредных выбросов в атмосферу. Разрешен сброс очищенных и обеззараженных на станциях биологической очистки бытовых сточных вод на рельеф местности (в пределах участка частного домовладения) и в водные объекты при соблюдении требований СанПиН 2.1.5.980-00.
Технологическая схема установки обеспечивает глубокую очистку по азоту и фосфору за счет создания условий для формирования специфических микробных биоценозов, обеспечивающих удаление органических веществ, азота и фосфора. Одновременно обеспечивается снижение объемов осадков образующихся при очистке хозбытовых стоков. Перед сбросом на рельеф местности, в придорожную канаву, овраг, водоем или для полива необходимо обеззараживание стоков в соответствии с СанПин 2.1.7.573-96.
Главной особенностью установки Биодевайс 10 является то, что они поставляются с блоком обеззараживания и блоком доочистки стоков. Конструкция установки рассчитана на неравномерное поступление сточных вод в течение суток. Объем сточных вод, поступающих в установку, должен соответствовать ее производительности 1 м3/сут. При этом среднесуточная гидравлическая нагрузка может изменяться в пределах 30%. В случае поступления сточных вод в объеме, несоответствующем производительности установки, и имеющих концентрации загрязняющих веществ, не соответствующих нормативным показателям, организация-изготовитель снимает с себя ответственность за качественные показатели очищенной воды.

Очистка сточных вод – комплекс мероприятий по удалению загрязнений, содержащихся в сточных водах. Биологическое очистное сооружение Биодевайс 10 имеет в своем составе блоки механической очистки, биологической очистки и обеззараживания сточных вод.
1. Механическая очистка сточных вод
Процесс механической очистки предназначен для удаления из сточных вод крупных плавающих отбросов (бумага, песок, остатки пищи, полиэтилен, перо) фракцией более 10 мм; взвешенных и плавающих веществ фракцией в первом блоке.
2. Биологическая очистка сточных вод
Биологическая очистка сточных вод в станции Биодевайс 10 основана на способности активного ила использовать органические и минеральные вещества, содержащиеся в сточных водах, в качестве источника питания и в процессе жизнедеятельности. Активный ил формируется под влиянием химического состава обрабатываемой сточной воды, растворенного в ней кислорода, температуры, pH и окислительно - восстановительного потенциала. Способность активного ила образовывать хорошо оседающие хлопья – важнейшее его свойство, т.к. эффективность очистки сточных вод в установке в значительной степени зависит от последующего процесса отделения активного ила от очищенной воды. Для правильного обеспечения деятельности установки необходимо оптимальное количество активного ила в зоне нитрификации сооружения.
Ищите специалистов для установки и монтажа? Посмотрите в нашем разделе "Строительные бригады" в Брянске
В интернет-магазине "Кирпич Вокруг" Вы можете купить Септик Биодевайс 10 в Брянске, а наши специалисты готовы вам помочь с выбором по адресу: , или оказать консультацию по телефону: .
| Производитель | Биодевайс |
| Страна изготовления | Россия |
| Вес, кг | 250 |
| Количество пользователей | 10 |
| Объём переработки | 2 м3/сут |
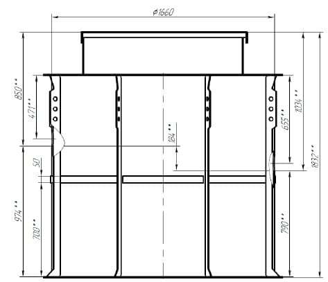
| ДхШхВ | 1.78х1.78х1.844 м |
| Залповый сброс | 503 л |
| Энергопотребление | 1.8 кВт/сут |